Architect plans - CBT South Ltd

Architect Plans

Evaluations and Floor Plans

4.0m x 3.6m

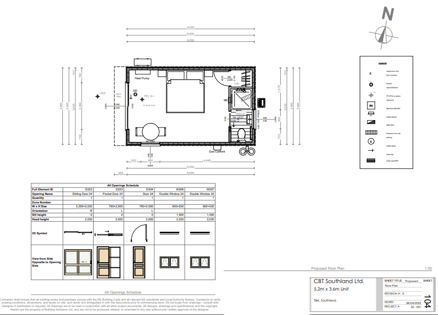
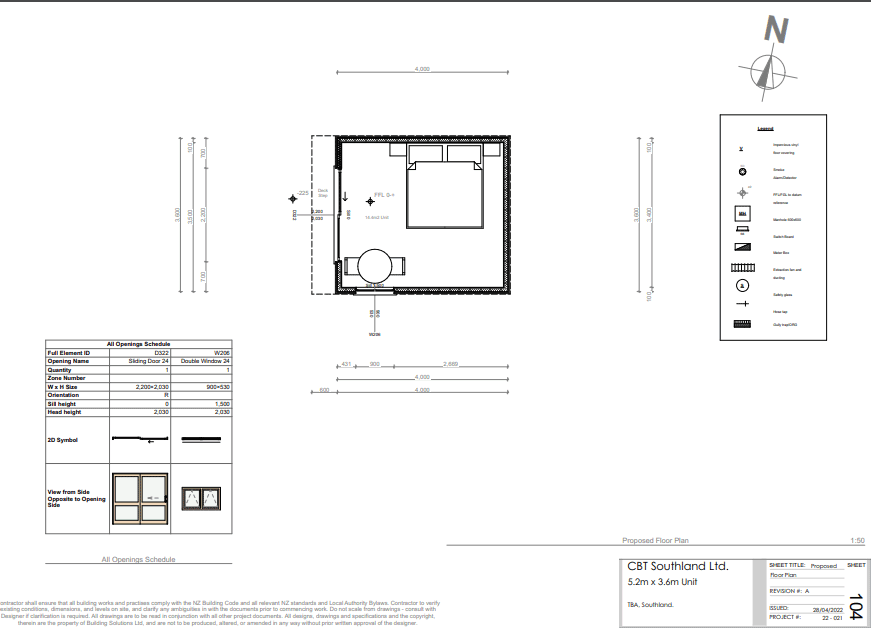
5.2m x 3.6m

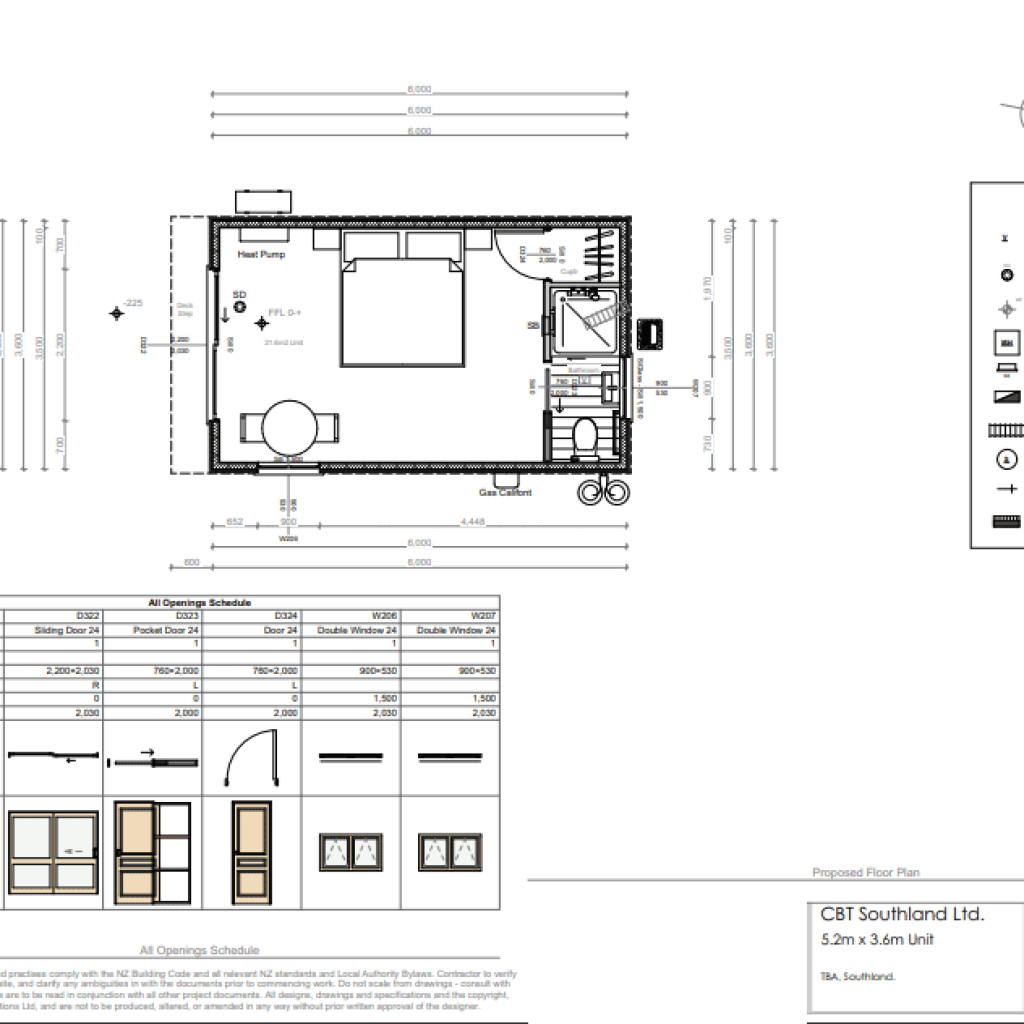
6.0m x 3.6m

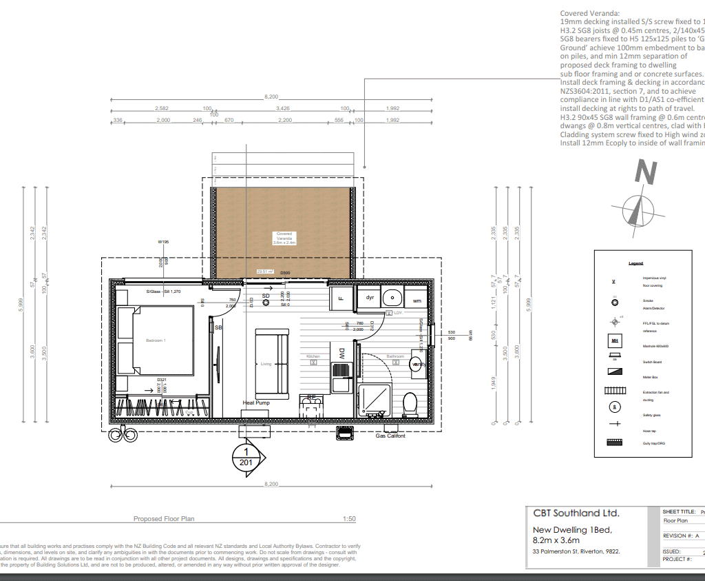
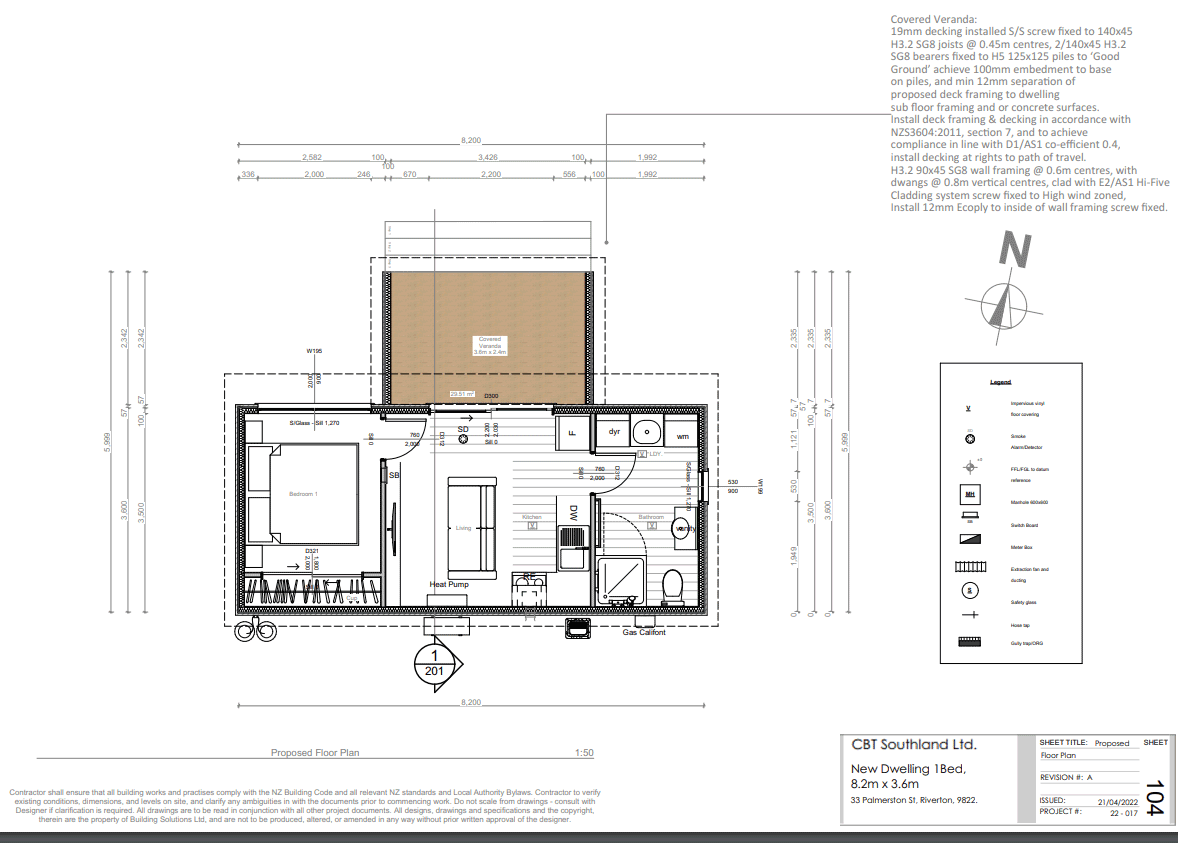
8.2m x 3.6m

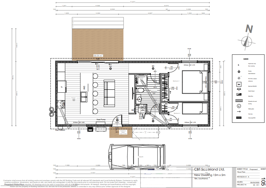
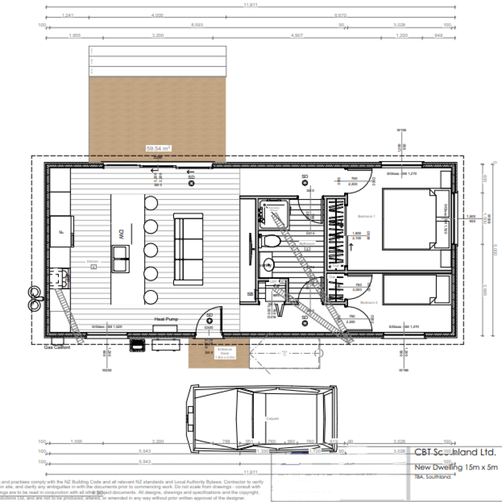
11.9m x5.0m

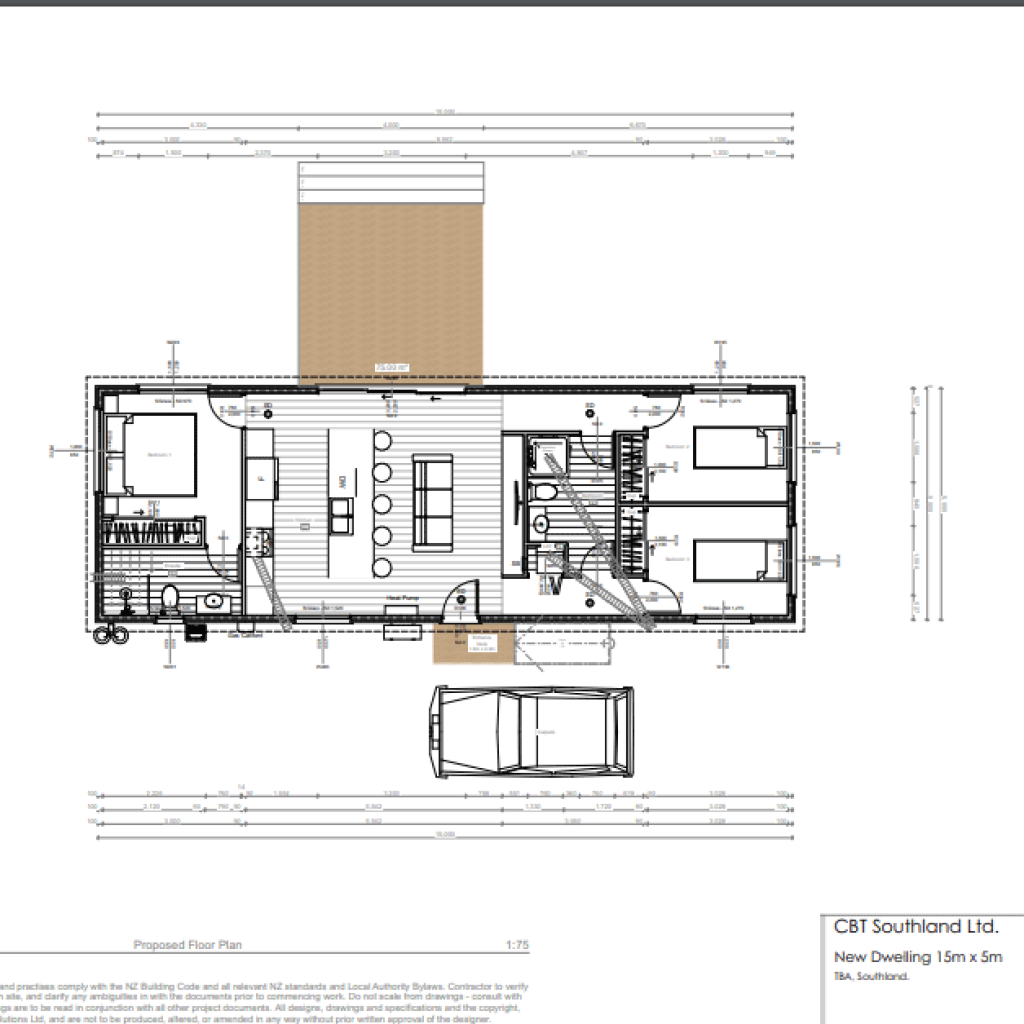
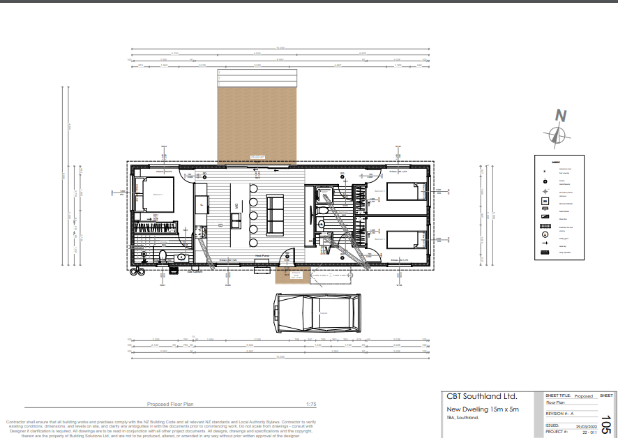
15m x 5m (3 bedrooms)

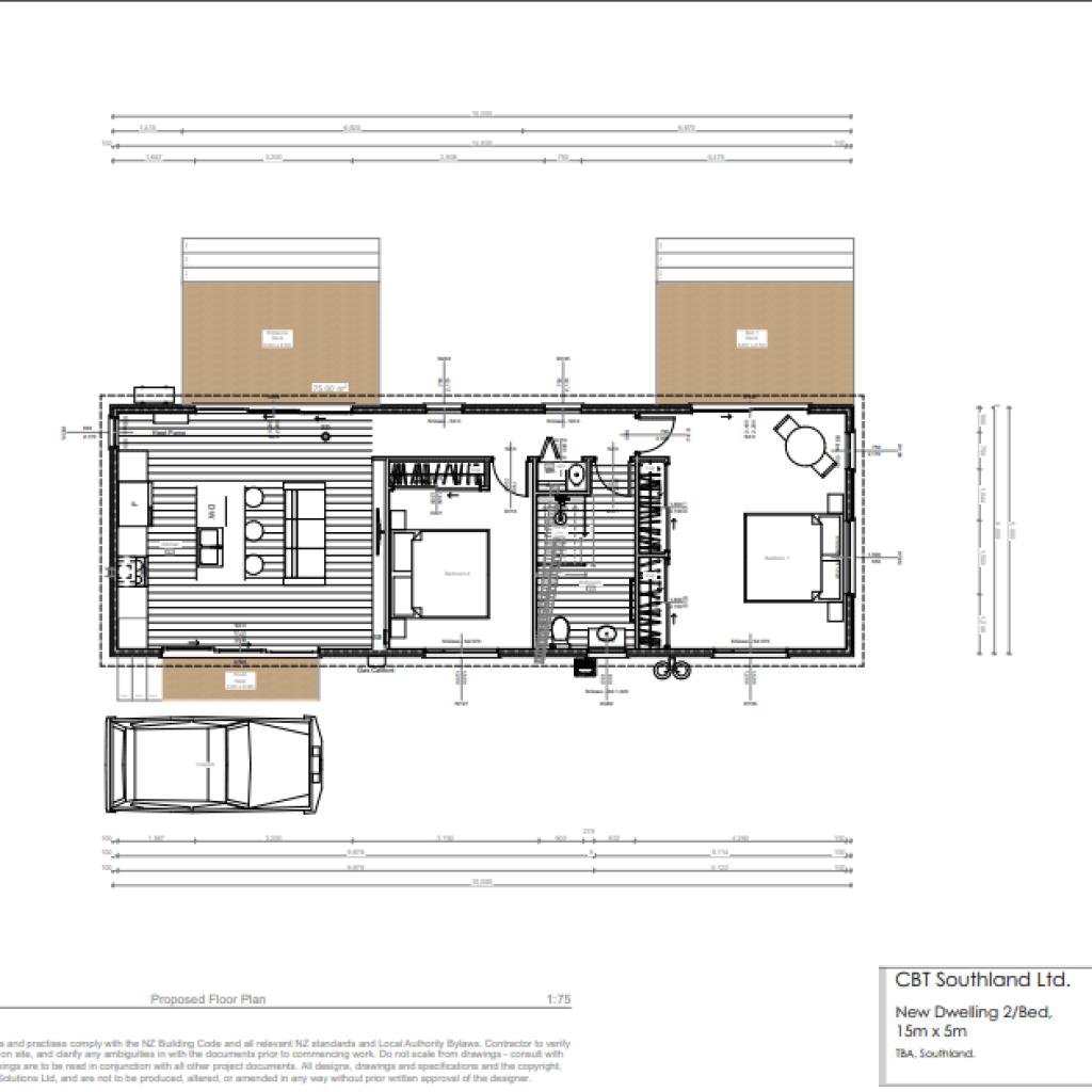
15m x 5m (2 bedrooms)